Ningbo HonGjia CNC Technology Co., Ltd. Hjem / Produkter / Almindelig drejning, fræsning og boremaskinserie / X6132 Universal Lifting Bord Milling Machine

X6132 Universal Lifting Bord Milling Machine

Produktintroduktion og brug
Dette maskinværktøj er et slags stærkt metalskæremaskineværktøj, værktøjet til maskinværktøjet har stærk stivhed, et bredt foderhastighedsområde og kan bære tunge belastningschips. Spindelkeglehullet kan installeres direkte eller gennem tilbehør til forskellige cylindriske fræserskærere, cirkulære fræserskærere, danner skærer, ansigtsfræser og andre værktøjer, der er egnet til behandling af forskellige dele af flyet, hældningen, rille og anden industri.

+ Kontakt os
  • X6132 Universal Lifting Bord Milling Machine

Produktionsinformation

Hovedstrukturelle træk
1, basen, flykrop, arbejdsbænk, dias, løfteskib og andre hovedkomponenter er støbt af materialer med høj styrke og kunstig aldringsbehandling for at sikre maskinværktøjets langsigtede stabilitet.
2, det vigtigste skaftleje af maskinværktøjet er en konisk rulleleje, hovedakslen vedtager tre understøttelsesstrukturer, systemets stivhed af hovedakslen er god, lejekapaciteten er stærk, og hovedakslen vedtager energiforbrugsbremsning, bremsemomentet er stort, og stop er hurtigt og pålideligt.
3, den vandrette rotationsvinkel på tabel ± 45 °, udvider værktøjets behandlingsområde. Den vigtigste transmissionsdel og foderdelen af ​​arbejdstabellen vedtager gearoverførselsstrukturen, hastighedsreguleringsområdet er bred, og hastighedsændringen er praktisk og hurtig.
4, Tabel X/Y/Z -retning har manuelt feed, mobil feed og mobil hurtig fremad tre, feedhastighed kan opfylde forskellige behandlingskrav; Det hurtige foder kan få emnet til at nå behandlingspositionen hurtigt, behandlingen er praktisk og hurtig, og den ikke-behandlingstid forkortes.
5, x, y, z Tre retningsguide par af ultra-audio slukning, præcisionsslibning og skrabning af behandling, med tvungen smøring, forbedrer nøjagtigheden, udvider maskinens levetid.
6. Smøringsenheden kan tvinge den langsgående, vandrette, L og lodrette blyskrue og guide skinne til at smøre, reducere slid på maskinværktøjet og sikre effektiv drift af værktøjet til værktøjet På samme tid ændrer kølesystemet størrelsen på kølevæskestrømmen ved at justere dysen for at imødekomme forskellige behandlingsbehov.
7, maskinværktøjsdesign i tråd med ergonomisk princip, let at betjene; Operationspanelet er designet med figurative symboler, som er enkel og intuitiv.

Hovedtekniske parametre for værktøjsmaskiner

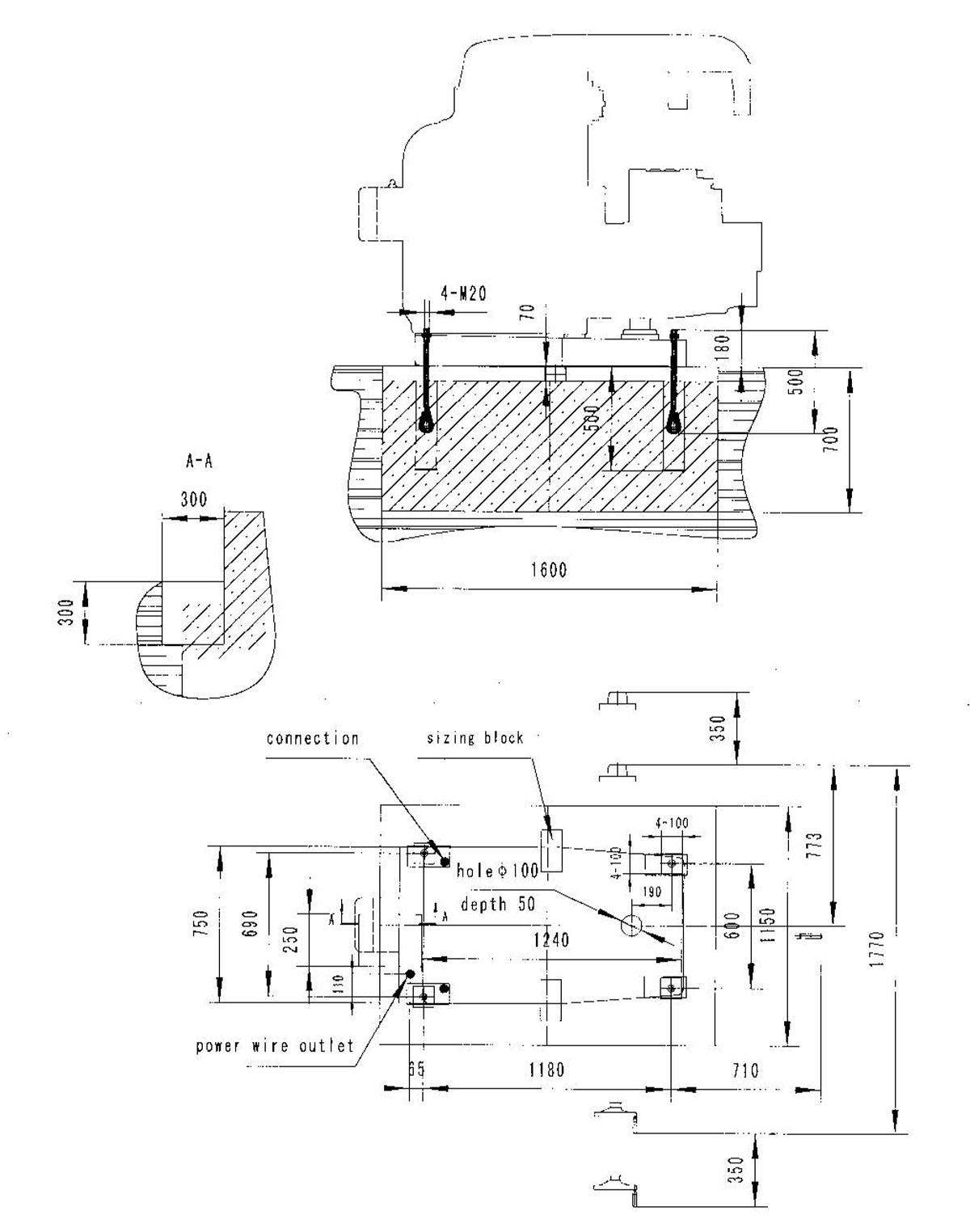
Tilspids af hovedakselhullet 7:24 ISO50
Afstand fra spindelcentret linje til seng lodret guide jernbane 30-350 mm
Afstand fra spindelcentret linje til ophængsstråle 155 mm
Spindelåbning 29 mm
Maksimal rotationsvinkel på tabel ± 45 °
Spindelhastighedsområde/serie 30 ~ 1500 o /min /18 niveau
Tabelstørrelse 1320x320 mm
Tabel Stroke Langsgående/tværgående/lodret 700 (680/255 (240)/320 (300) mm
Tabel Foderområde Langsgående/tværgående/lodret Niveau 18 23.5-1180/23.5-1180/8-394 mm/min
Bord hurtigt bevægende hastighed lodret/vandret/lodret 2300/2300/770 mm/min
Antal, bredde og afstand af t-formede slots af arbejdsbænken 3/18/70 mm
Hovedmotorkraft 7,5 kW
Foder motorkraften 1,5 kW
Maskindimensioner (L X W X H) 2294x1770x1665 mm
Netmaskinvægt 2700/3000 kg

Hold kontakten

+ SUBMIT
Ningbo HonGjia CNC Technology Co., Ltd.
Ningbo HonGjia CNC Technology Co., Ltd.
Ningbo HonGjia CNC Technology Co., Ltd. startede i 2006 og blev oprettet i 2018. Det er beliggende i Qianwan New District, Ningbo City, Zhejiang -provinsen, sydfløj i Kina Yangtze River Delta Economic Zone. Det er en virksomhed, der specialiserer sig i forskning, udvikling, produktion og salg af CNC -metalskæringsudstyr. Som et Kina X6132 Universal Lifting Bord Milling Machine supplier and custom X6132 Universal Lifting Bord Milling Machine company, Med stærk teknisk styrke og rig industrioplevelse, er HonGjia CNC forpligtet til at give kunderne avancerede CNC -løsninger for at imødekomme kundernes behov i forskellige brancher.
Plante og udstyr
  • Fabriksudseende
  • Fabriksudseende
  • Udstyr
  • Udstyr
  • Udstyr
  • Udstyr
  • Udstyr
Hvad er nyheder
Industri viden

X6132 Universal Lifting Bord Milling Machine , som et produkt af HonGjia CNC, har vundet et højt omdømme i mange brancher for sin kraftfulde metalskæringsevne og bred anvendelighed. Dette maskinværktøj er ikke kun stiv nok til at modstå tunge belastningsskærende operationer, men også udstyret med en lang række foderhastigheder for at sikre stabiliteten og effektiviteten af ​​behandlingsprocessen. Dens spindel -koniske huldesign er fleksibelt, og forskellige cylindriske fræserskærer, cirkulære fræser, der danner fræser, står over for fræservæsere osv. Kan installeres direkte eller gennem tilbehør, tilvejebringelse af ubegrænset mulighed for behandling af forskellige komplekse dele, såsom fly, instrumentation, riller, huller osv. Biler, motorcykler og andre industrier.

Udsøgt håndværk, støbning af fremragende kvalitet
HonGjia CNC ved, at høj kvalitet kommer fra den ultimative forfølgelse af detaljer. Hovedkomponenterne i X6132 Universal Lifting Table Milling Machine, såsom basis, krop, arbejdsbænk, dias, løfteglidning osv., Kastes alle med højstyrkematerialer og kunstigt alderen, hvilket effektivt eliminerer materialets interne stress og sikrer den langsigtede stabilitet og præcisionsretention af maskinværktøjet. Spindlen vedtager koniske rullelejer kombineret med en tre-understøttende struktur, som ikke kun har god systemstivhed og stærk belastningskapacitet, men er også udstyret med en energikonsugende bremseenhed, med stort bremsemoment og hurtig og pålidelig nedlukning, hvilket giver en solid garanti for høj præcisionsbehandling.

Fleksibel og skiftbar, hvilket udvider behandlingsgrænserne
For at imødekomme de diversificerede behandlingsbehov kan den horisontale rotationsvinkel på arbejdsbordet af det universelle løftemaskine X6132 nå ud til ± 45 °. Dette design udvider værktøjets behandlingsområde i høj grad. På samme tid vedtager hovedtransmissionsdelen og foderdelen af ​​arbejdsbordet en gearoverførselsstruktur med et bredt hastighedsreguleringsområde og praktisk og hurtig hastighedsændring, hvilket gør behandlingsprocessen mere fleksibel og effektiv. Med hensyn til fodringstilstand har X/Y/Z -retningerne for maskinværktøjet tre tilstande: manuel fodring, motoriseret fodring og motoriseret hurtig fodring. Fodringshastigheden kan justeres fleksibelt i henhold til forskellige behandlingsbehov. Den hurtige fodringsfunktion giver emnet mulighed for hurtigt at nå behandlingspositionen, forkortning af den ikke-behandlingstid og forbedring af den samlede behandlingseffektivitet.

Præcision Manufacturing, udvidet levetid
Med hensyn til detaljeringsbehandling er X, Y og Z Guide Rails of the X6132 Universal Lifting Table Milling Machine blevet ultralyd, der er slukket, præcisionsjord og skrabet, og det tvungen smøresystem er ikke kun forbedret behandlingsnøjagtigheden markant, men også effektivt udvidet servicelivet for maskinværktøjet. Smøringsenheden kan tvinge smøring af blyskruerne og guide skinner i de langsgående, tværgående og lodrette retninger, hvilket effektivt reducerer slid på maskinværktøjet og sikrer den effektive og stabile betjening af værktøjet til værktøjet. Derudover justerer kølesystemet fleksibelt kølevæskestrømmen ved at justere dysen for at imødekomme kølebehovene under forskellige behandlingsbetingelser, hvilket yderligere forbedrer behandlingskvaliteten og effektiviteten.

Humaniseret design, forenklet driftsproces
HonGJIA CNC overvejede fuldt ud bekvemmeligheden ved interaktion mellem mennesker og maskine, når man designede X6132 Universal Lifting Table Milling Machine. Det overordnede design af maskinværktøjet er i overensstemmelse med principperne for ergonomi, er let at betjene og let at bruge. Kontrolpanelet vedtager et grafisk symboldesign, som er intuitivt og let at forstå. Selv førstegangsoperatører kan hurtigt mestre det, hvilket i høj grad reducerer vanskeligheden ved drift og forbedrer arbejdseffektiviteten.

Tøv ikke med at kontakte, når du har brug for os!